土地付建物
販売価格 :
12,000万円
| 所在地 | 宇都宮市鶴田町1395-8 | ||
|---|---|---|---|
| 面積 | 286.37㎡(86.62坪)登記簿 | ||
| 権利 | 所有権 | ||
| 地目 | 宅地 | 現況 | 宅地 |
| 接面道路 | 約6M 公道 | ||
| 接面方位 | 東側 | ||
| 私道負担 | 無し | ||
| その他 | |||
| 構造 | 木造ルーフィング葺2階建 | ||
|---|---|---|---|
| 築年月 | 平成19年11月 新築 | ||
| 面積 | 1階 158.58㎡ 2階 114.40㎡ 合計:272.98㎡(82.57坪) |
||
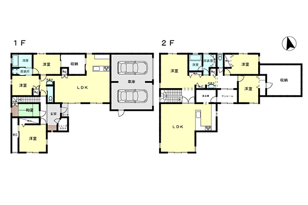
| 概略間取 | 6LLDKS+小屋裏収納 | ||
| 現況 | 居住中 | ||
| その他 | 駐車8台(ガレージ内2台) 太陽光20.2Kw 基礎断熱 タイムガード 全館空調 二重窓 |
||
| 用途地域 | 準住居地域 | ||
|---|---|---|---|
| 建ぺい率 | 60% | 容積率 | 200% |
| その他制限 | |||
| 水道 | 公共 |
|---|---|
| ガス | 都市ガス |
| 排水•汚水 | 公共 |
| 電気 | 東京電力 |
| その他 |
| 最寄駅名 | JR日光線「鶴田駅」 |
|---|---|
| 距離 | 約1900M |
| 最寄駅名 | 東武宇都宮線「南宇都宮駅」 |
| 距離 | 約2700M |
| ・姿川第二小学校 約1000M ・宮の原中学校 約1000M ・ヨークベニマル鶴田店・マツモトキヨシ 約500M ・中鶴田幼稚園 約450M |
管理番号 : 2510-001

© 2013-2024 Arai-Kaihatsu.co.,ltd